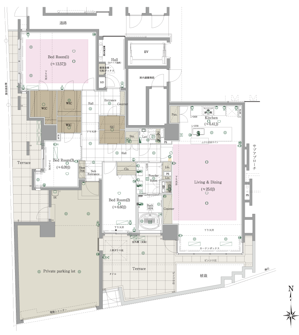
TOP Etype ROOM PLAN PREMIUM FLOOR Etype 3LDK+SIC+WIC 生活空間面積 / 240.98m2(72.89坪)テラス面積 / 55.01m2専有面積 / 141.11m2(42.68坪)専有駐車場面積 / 44.86m2 Etype 3LDK+SIC+WICFtype 3LDK+SIC+WIC+SPCLGtype 3LDK+SIC+WICHtype 3LDK+SIC+WIC+SR+PANItype 2LDK+WIC CONTACT 0120-123-556 電話受付時間 / 10:00~19:00(定休日 / 第2・3水曜日 祝日の場合は営業致します) ※掲載の図面は設計段階の図面をもとに描き起こしたもので実際とは異なる場合がございます。行政の指導、施工上の都合及び改良のため、変更する場合があります。